Related Posts Plugin for WordPress, Blogger...

[賞燈趣] 2013台灣燈會在新竹縣

logo在古早的年代,農曆新年一直要的正月十五鬧元宵之後才算結束,所以放完了九天的春節年假之後,接下來的重頭戲就是農曆十五的元宵節啦。也不知道是從哪一年開始,每年元宵燈會就由各縣市輪流舉辦,就這樣輪啊輪的,今年的台灣燈會就擺到新竹縣來了。雖然說,每個縣市政府還是有自己舉辦的燈會,但是台灣燈會卻是每一年的主角,不看真的是可惜了。

(文末已補上 2013台灣颩燈會開燈儀式實況重播影音)

今年的燈會主燈正好就在高鐵站後方的大草坪上,所以外縣市來的民眾搭高鐵或台鐵,出了車站就可以進入燈會區,真是超級方便的,只是人太多有可能還是會塞在門口的,萬一塞住了還請大家稍安勿躁,主燈不會跑掉,等一下還是看得到的。至於新竹縣市的在地民眾想去看燈會,建議有機車的就騎車,不然就搭台鐵新竹─六家的捷運過去,也省了跟外縣市參觀人潮擠在一起,反正在新竹,也不用趕著在週末假日去湊熱鬧,平常下班時間就可以帶著一家老小好好去散步散步,既賞燈又可以培養家人的感情。

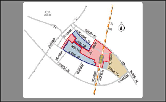
出門賞燈的最怕就是塞車,尤其往年各縣市的慘痛經驗,今年燈會主辦單位規劃了很多便民的交通方式,希望大家可以多多利用大眾運輸工具,才不會因為塞車壞了賞燈的興致。燈會期間,花燈展覽區域周邊道路會有交通管制,要出發賞燈之前還是要記得查詢一下管制路線,規劃自己的賞燈行程,才不會為了要看花燈看出一肚子氣。下面就幫大家整理一下燈會的相關資訊。

1. 交通管制(資料來源:台灣燈會官網
交管
交通管制

2. 停車場位置(資料來源:台灣燈會官網
完整停車資訊請至台灣燈會:停車場位置
parkMap

3. 接駁車資訊(資料來源:新竹縣政府台灣燈會官網
a. 燈會接駁車
接駁車進場服務時間:平日14:00—20:00;假日10:00—20:00
接駁車離場服務時間:平日15:00—23:30;假日11:00—23:30
接駁車班距:離峰時段10-15分鐘一班;尖峰時段5-10分鐘一班
(高鐵線將配合高鐵發車時間行駛)
car2

b. 通勤專用接駁車(資料來源:新竹縣政府
0208-台灣燈會-10p-003


如何去燈會(資料來源:新竹縣政府台灣燈會官網
a. 自行開車
自行開車

b. 搭高鐵
(1) 高鐵班車請上高鐵官網查詢列車時刻
(2) 2013台灣燈會在新竹縣的日期是2/24日到3/10日,長達15天的嘉年華會,高鐵將加班加強運輸,加班時段、末班車時間、如何轉乘等措施如下:
(一)高鐵新竹站加班時段 2月24日、3月1日至3月3日、3月8日至3月10日等加開「台北-台中」區間班車,疏運旅客。
1、南下加班車時段:17時22分、21時22分。
2、北上加班車時段:19時21分、22時45分
3、共計加開28班次。
(二)高鐵竹北站末班列車
1、南下:23時34分。
2、北上:23時22分。

c. 搭台鐵
一、台鐵列車時刻表
二、燈會期間台鐵加班運輸
2013台灣燈會在新竹縣的日期是2/24日到3/10日,長達15天的嘉年華會,台鐵將加班加強運輸,加班時段、末班車時間、如何轉乘等措施如下:
(一)臺鐵轉乘措施
1、南下旅客(由基隆、臺北、桃園等往新竹)請於竹北站下車轉乘燈會接駁車前往燈區。
2、北上旅客(由彰化、臺中、苗栗等往新竹)請於新竹站下車轉乘燈會接駁車或搭乘台鐵六家支線至燈區。
(二)臺鐵增停竹北站
燈會期間除觀光列車及太魯閣自強號,南下對號列車自12:00起、北上對號列車自18:00起,皆停竹北站。
(三)臺鐵竹北站末班列車
1、南下:23時15分。
2、北上:23時13分。
(四)臺鐵新竹站末班列車
1、南下:0時2分。
2、北上:23時05分。
三、為配合『2013台灣燈會在新竹』活動疏運旅客需要,指定日期加開旅客列車如下:
(一)加開區間車:
列車加開資訊連結網址
西部幹線逆行加班時刻表下載
西部幹線順行加班時刻表下載

影音隨選:
hiChannel - 2013台灣颩燈會 
hiChannel - 2013台灣燈會開燈實況(持續重播中)

沒有留言 :

張貼留言